无障碍版 长者助手 登录
您当前的位置: > >

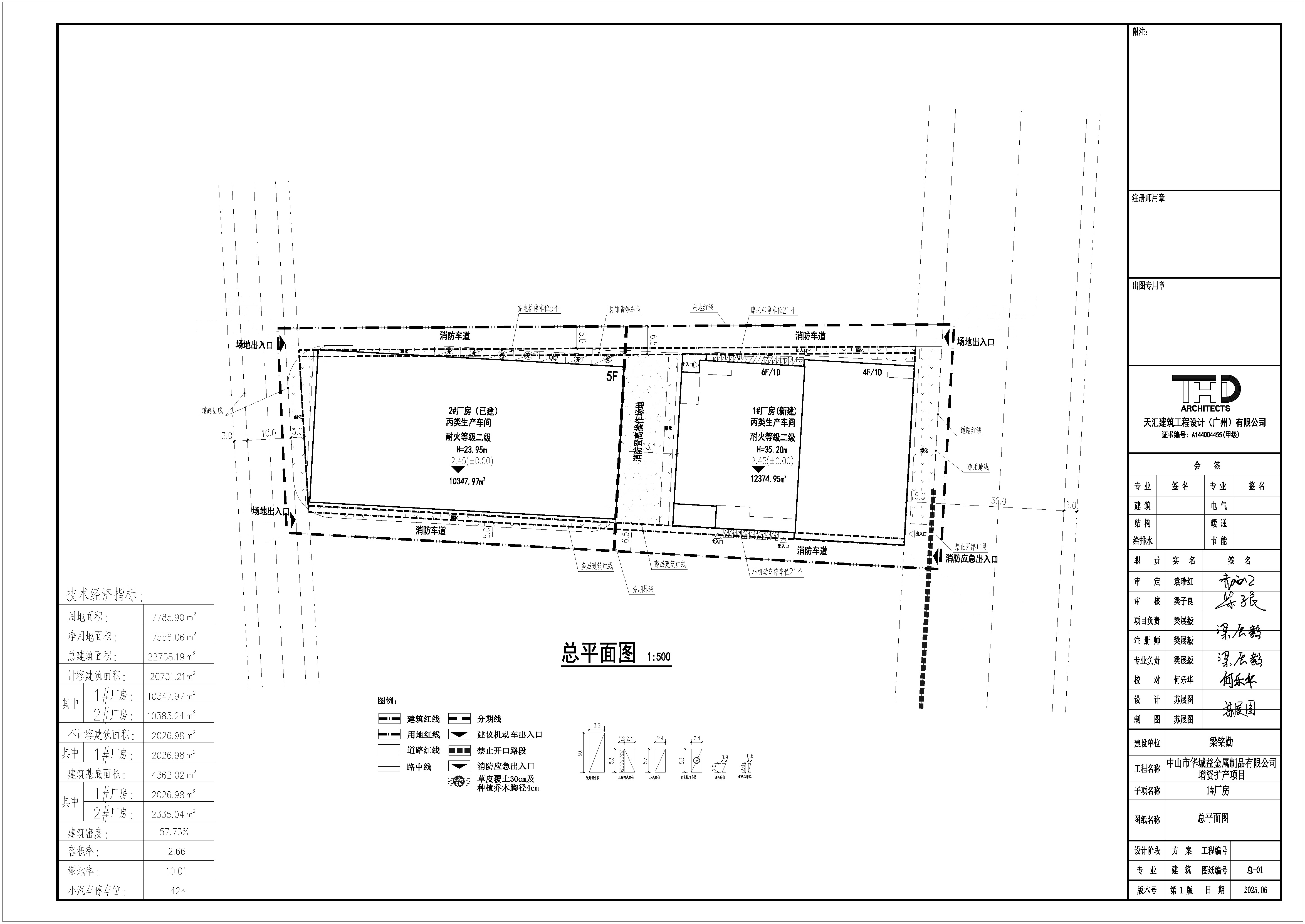
关于南头镇梁铭勤“工改工”宗地“三旧”改造项目改造方案的公示

信息来源:本网 发布日期:2025-09-22 分享:

  根据《中山市旧厂房改造升级实施细则(修订)》(中府〔2023〕58号)、《关于促进村镇低效工业园改造升级的若干措施》(中府〔2022〕11号)有关规定要求,现将《南头镇梁铭勤“工改工”宗地“三旧”改造项目改造方案》进行公示,公示期2025年9月22日至2025年10月6日。广大市民和相关利害关系的个人或单位如有意见或建议,请于2025年10月6日前向南头镇政府了解或反映有关情况,逾期反馈视为无异议。

  联系地址:中山市南头镇南头大道中1号214室

  联系人:高先生

  联系电话:0760-23380217  

                                

  附件:1.南头镇梁铭勤“工改工”宗地“三旧”改造项目改造方案

               2.改造方案总平面示意图

               3.改造方案效果示意图


中山市南头镇人民政府         

2025年9月22日