为保障人员和交通运输工具正常出入境,确保中山港对外开放口岸安全、顺畅,依据《中华人民共和国出境入境管理法》《中华人民共和国出境入境边防检查条例》等有关法律法规,现将中山港口岸限定区域范围及管理要求通告如下:
一、口岸限定区域范围划定依据
依据《中华人民共和国出境入境管理法》第六条、《中华人民共和国出境入境边防检查条例》第四条等有关法律法规及相关文件精神,按照因地制宜、有效封闭、有利管理、保证安全的原则划定口岸限定区域。
二、中山港口岸限定区域范围
(一)中山港客运口岸码头(地址:中山市火炬开发区沿江东一路1号,中山新客运口岸码头(位于翠亨新区)启用后,废除此限定区域)
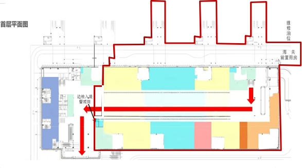
中山港客运口岸码头限定区域分为联检大楼入境(一楼)和出境(二楼)两部分。该码头限定区域具体范围为:
1.入境部分(一楼):如图,红色粗线条范围内区域,由一、二、三号泊位的登船通道处至边检入境警戒岗(即入境通道处),包含两者之间的所有通道及通道周边各口岸联检单位用房和联营公司用房。

2.出境部分(二楼):如图,红色粗线条范围内区域,从边检入境警戒岗至平面图左上方海关查验区的电梯处之间的所有通道,及通道周边各口岸联检单位用房和联营公司用房。

(二)中山新客运口岸码头(地址:中山市翠亨新区东汇路66号)
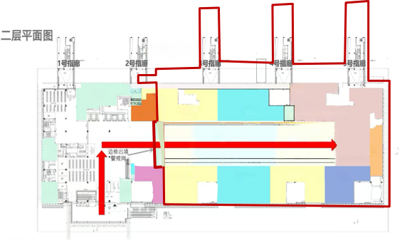
中山新客运口岸码头限定区域为联检大楼入境(一楼,含夹层)和出境(二楼,含夹层)两部分以及联检大楼临海一侧至岸线的陆地区域(联检大楼西南角的客运公司消防控制室等已与大楼内其他部分作物理隔离的功能房间不划入限定区域内,该部分未在图纸体现,在此标注)。该码头限定区域具体范围为:
1.入境(一楼):如图,红色粗线条范围内区域,包含图示各国际航线泊位行至查验大厅出口处边检入境警戒岗的所有通道(图示红色箭头方向),以及通道周边各口岸联检单位用房和联营公司用房和3、4、5号指廊(含周边水域),以及海关前置用房及用房周边围壁之间区域(因该位置不包含在联检大楼主体建筑内,故用文字说明,在此处列为一楼区域)。

2.出境(二楼):如图,红色粗线条范围内区域,包含查验大厅入口处边检出境警戒岗至图示各国际航线泊位登船处之间的所有通道(图示红色箭头方向),及通道周边各口岸联检单位办公用房和联营公司用房和3、4、5号指廊。

(三)中山港货运联营有限公司码头(地址:中山市火炬开发区沿江东一路7号)
如图,红色粗线条范围内区域,西起私盐水闸所在桥口(有车辆进出闸口),至东侧进口仓外围墙壁,东西最长处约390米;北起码头前沿线,南至沿江东路一侧围墙(不包含国际货柜大厦和综合大楼及进出口东侧部分区域)南北最宽处约250米,占地面积约9.2万平方米。

(四)中山中外运仓码有限公司码头(地址:中山市火炬开发区沿江东一路17号)
如图,红色粗线条范围内区域,西起内外贸堆场间围壁,东至码头员工通道东侧围壁,东西最长处约400米;北起码头前沿线,南至沿江东路一侧围墙(不包含图示两栋大楼及饭堂),南北最宽处约380米,占地面积约9.7万平方米。
其中,为解决内贸泊位不足的问题,3、4号泊位在必要时可由外贸作业区转换为内贸作业区,两个作业区域之间使用活动围栏作为隔断,内外贸作业区转换时,限定区域边界以活动围栏为界(图中两端标星红线)。

(五)黄圃港货运联营有限公司码头(地址:中山市黄圃镇吴栏村黄圃港综合大楼旁)
如图,红色粗线条范围内区域,西起内贸区和外贸区一侧船舶停靠岸线,至外贸区东侧与可用面积一侧围壁,东西最宽约130米;北起外贸区泊位一侧船舶停靠岸线,南至货运码头与规划进港公路一侧围墙(不包含黄圃港报关大厅货和万年红修场箱),南北最长约420米,占地面积约2.2万平方米。

(六)神湾港货运联营有限公司码头(地址:中山市神湾镇神港路中段)
如图,红色粗线条范围内区域,南起内贸区和外贸区一侧围壁,至外贸区北侧和三期码头发展用地一侧围壁(不包含维修车间),南北最长处约190米;西至3、4号泊位所在一侧船舶停靠岸线,包含泊位与外贸区相连的引桥通道(不包含两桥位间的水域),东至货运码头与进港大道一侧围墙(不包含办公大楼和集装箱维修场地),东西最宽处约130米,占地面积约6.3万平方米。
其中,为解决内贸区域吊机及泊位不足的问题,2、3、4号泊位吊机在必要时可由外贸作业区移动至内贸作业区,两个作业区域之间使用活动围栏作为隔断;3、4号泊位可申请临时作为内贸泊位使用,作业完成后即刻恢复为外贸泊位。

(七)神湾港盛世游艇会(中山)有限公司码头(地址:中山市神湾镇彩虹路23号)
如图,红色粗线条范围内区域,整体呈不规则形状,主要包含查验大厅及通往3个查验泊位船舶舷梯口区域,以及公共泊位停放水域和岸侧卡口通道,占地面积约5.1万平方米(区域内水域面积约为4.5万平方米)。

根据中山港各口岸扩大开放及口岸联营公司和港口企业运营情况的变化适时调整已划定的口岸限定区域范围,届时以通告内容为准。
三、口岸限定区域管理要求
(一)中山出入境边防检查站依据《中华人民共和国出境入境管理法》对口岸限定区域依法实施管理,维护口岸正常出境入境秩序,对扰乱口岸限定区域管理秩序的行为,依法予以处罚。
(二)中山出入境边防检查站会同口岸有关管理部门,以及经营单位通过物理隔离、电子门禁、电子围栏等方式对口岸限定区域实施封闭隔离,设置相应的通道、卡口或岗亭,设立口岸限定区域标识。
(三)中山出入境边防检查站通过实地巡查、电子监控等方式对口岸限定区域进行管理,并会同口岸所在地公安机关和有关职能部门建立协作机制,明确职责分工,共同维护口岸正常出境入境秩序。必要时,对口岸限定区域进行警戒。
(四)本通告自发布之日起生效。
中山市人民政府
2024年9月26日