无障碍版 长者助手 登录
您当前的位置: > >规划计划

关于横栏镇施成森“工改工”宗地项目 “三旧”改造方案的公示

信息来源:中山市横栏镇人民政府 发布日期:2025-08-22 分享:

根据《中山市旧厂房改造升级实施细则(修订)》(中府〔2023〕58号)、《关于促进村镇低效工业园改造升级的若干措施》(中府〔2022〕11号)有关规定要求,现将《横栏镇施成森“工改工”宗地项目“三旧”改造方案》进行公示,公示期为2025年8月22日至2025年9月5日。广大市民和相关利害关系的个人或单位如有意见或建议,请于2025年9月5日前向横栏镇人民政府了解或反映有关情况,逾期反馈视为无异议。

联系地址:中山市横栏镇长安南路39号三楼307办公室

联系人:林先生

联系电话:0760-87619555

附件:1.横栏镇施成森“工改工”宗地项目“三旧”改造方案

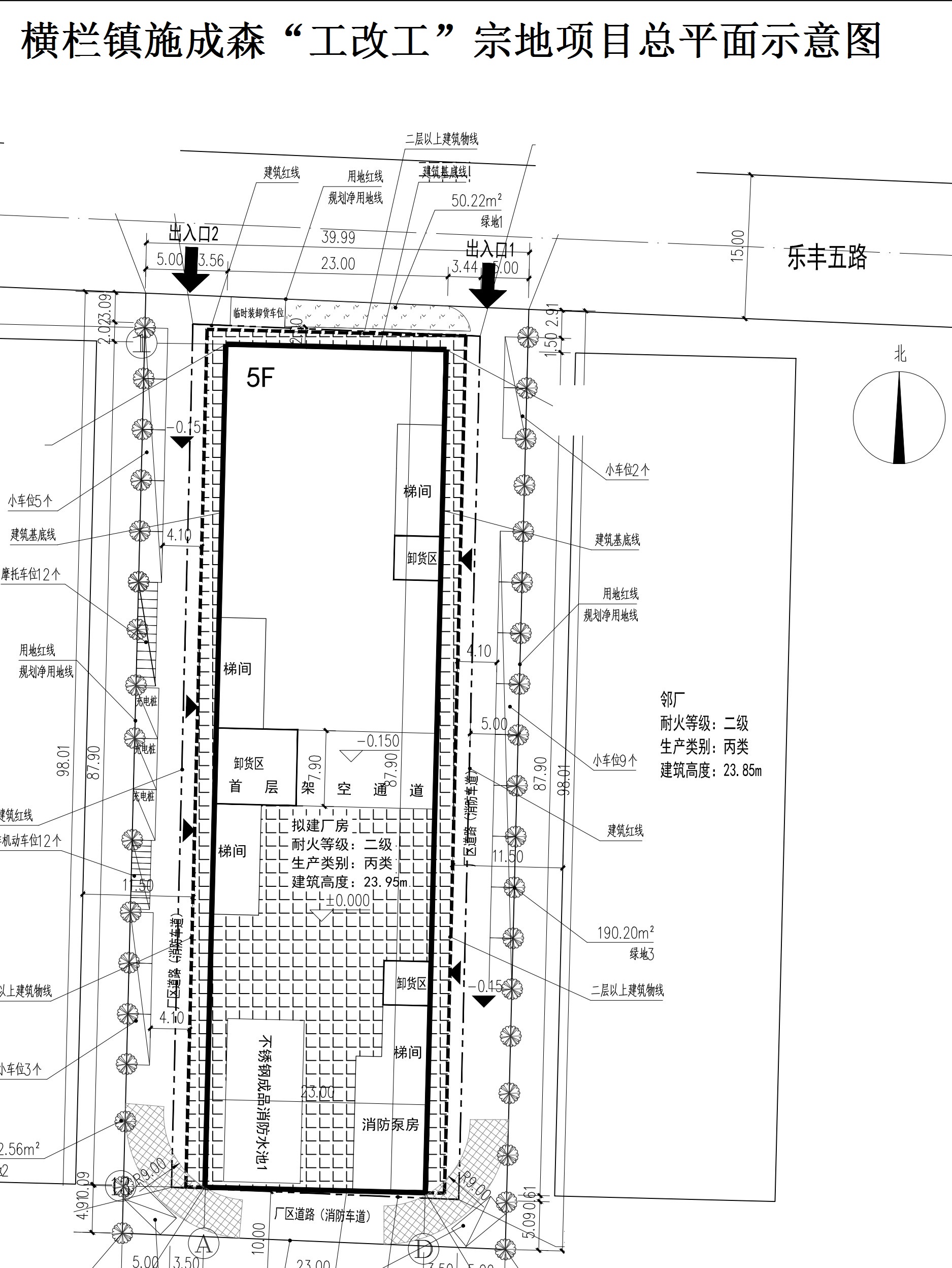
    2.改造方案总平面示意图

    3.改造方案效果示意图

中山市横栏镇人民政府

2025年8月22日