 无障碍    长者助手 我的收藏   收藏
政府信息公开 规章库

中山市南头镇人民政府信息公开

索引号: 114420000073574594/2023-00584 分类:
发布机构: 中山市南头镇人民政府 成文日期: 2023-11-17
名称: 关于南头镇梁惠玲工业项目低效工业用地改造方案的公示
文号: 发布日期: 2023-11-17
主题词:
【打印】 【字体:    

关于南头镇梁惠玲工业项目低效工业用地改造方案的公示

发布日期:2023-11-17  浏览次数:-

  根据《中山市旧厂房改造升级实施细则(修订)》(中府〔2023〕58号)、《关于促进村镇低效工业园改造升级的若干措施》(中府〔2022〕11号)、《关于促进2010年后实施建设等情形的低效工业用地升级改造支持政策的通知》(中山自然资函〔2023〕183号)有关规定要求,现将《南头镇梁惠玲工业项目低效工业用地改造方案》进行公示,公示期2023年11月17日至2023年12月1日。广大市民和相关利害关系的个人或单位如有意见或建议,请于2023年12月1日前向南头镇政府了解或反映有关情况,逾期反馈视为无异议。

  联系地址:中山市南头镇南头大道中1号214室

  联系人:高先生

  联系电话:0760-23380217

                        

  附件:1.南头镇梁惠玲工业项目低效工业用地改造方案

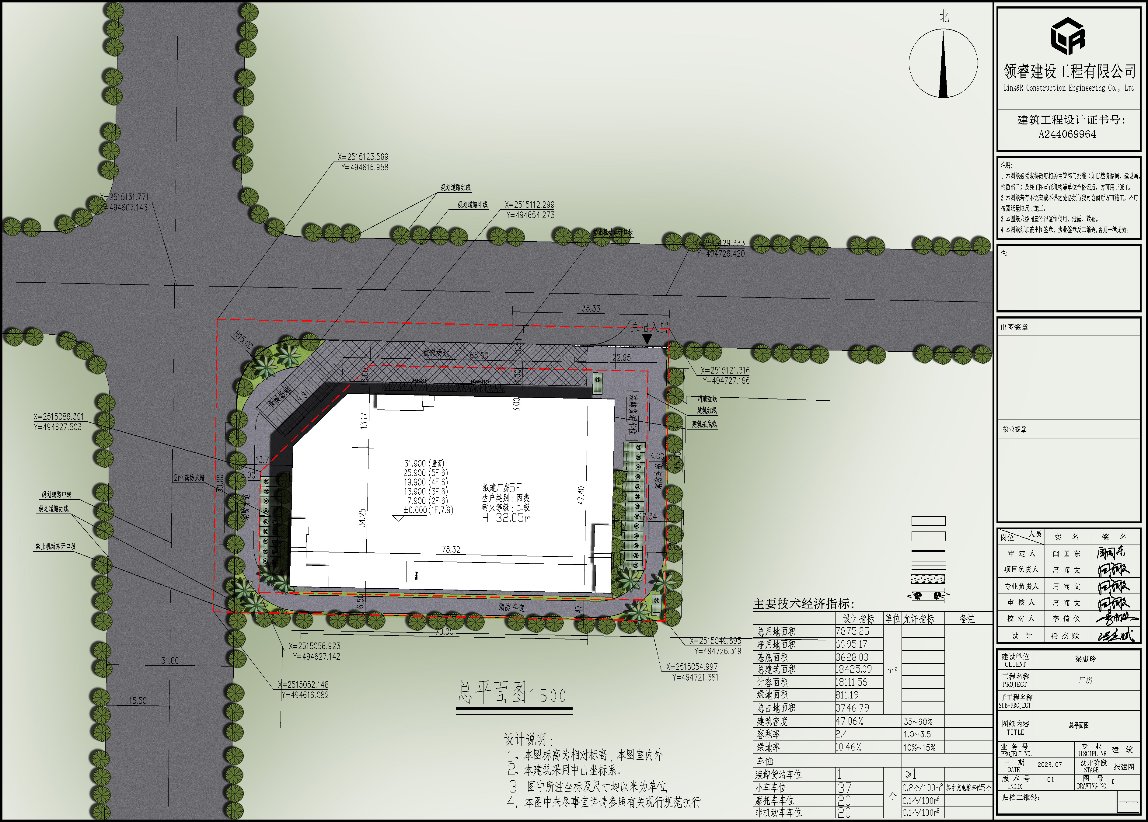
             2.改造方案总平面示意图

             3.改造方案效果示意图


中山市南头镇人民政府      

2023年11月17日         



附件:

1.附件1:南头镇梁惠玲工业项目低效工业用地改造方案.docx

2.附件2:改造方案总平面示意图.jpg

3.附件3:改造方案效果示意图.jpg